UA-74796210-1

THÀNH VIÊN ĐĂNG NHẬP

Tên truy cập
Mật khẩu
Quên mật khẩu?
  • TIN TỨC

    SẢN PHẨM HOT

    HỖ TRỢ KHÁCH HÀNG


    SKYPE & HOTLINE : 0918063534

    SKYPE & HOTLINE : 0966040575
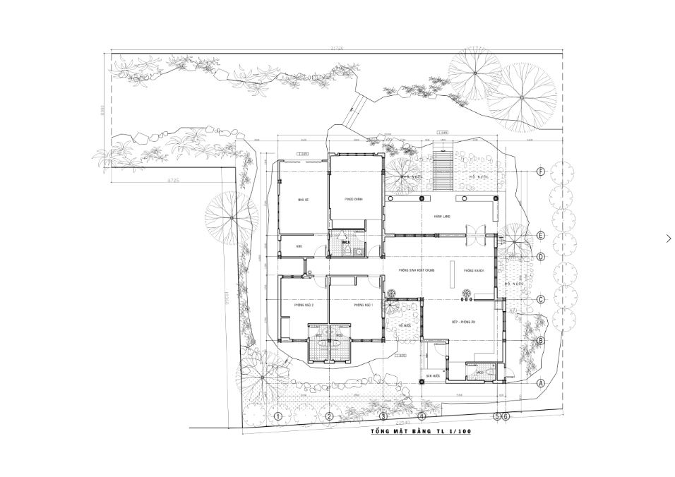
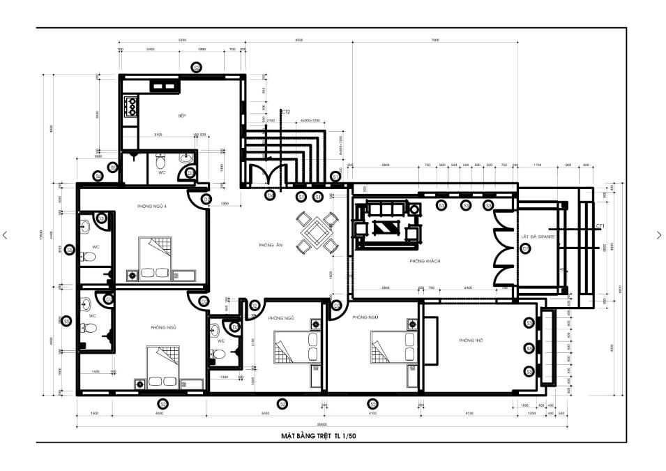
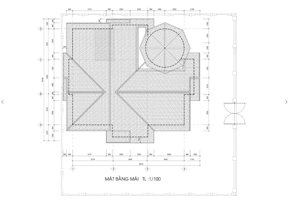
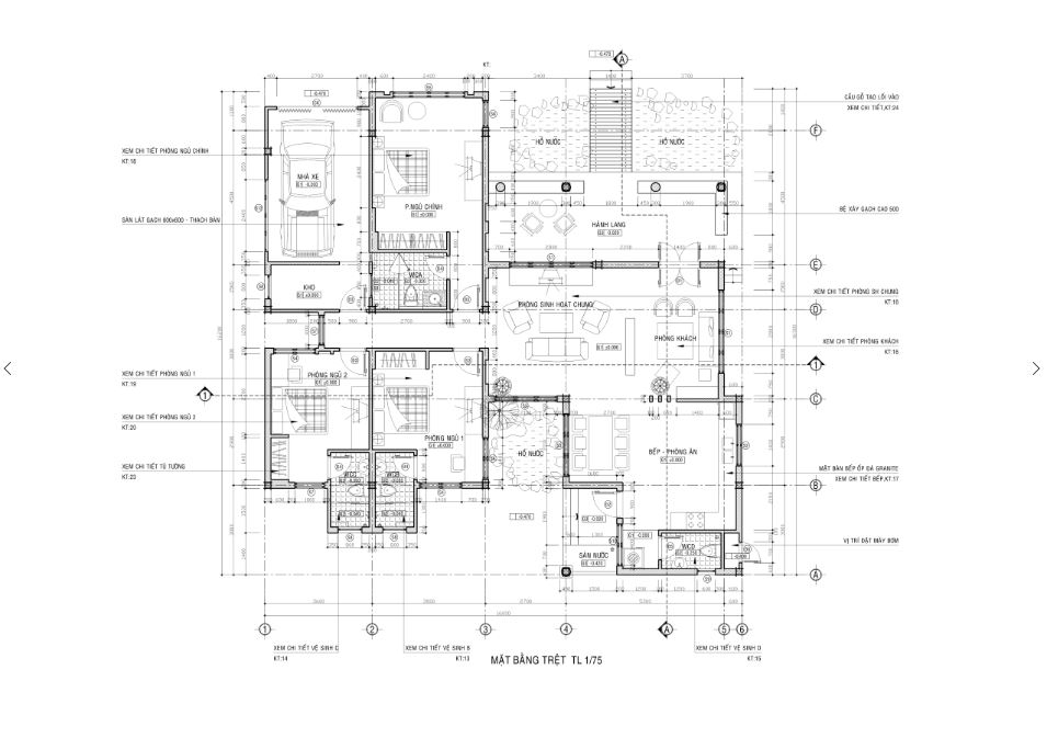
    Bản vẽ Biệt thự 3 tầng (23X24)
    27/04/2016 10:56 | Lượt xem: 1921
    • Diện tích xây dựng 23X24m =552 m2
    • Số tầng: 03 tầng và mái lợp ngói
    • Công năng sử dụng:

    -  Tầng (Trệt) gồm : garege, 01 phòng giúp việc, 01 kho.

    -  Tầng (01) gồm :01 phòng khách, 01 phòng ngủ lớn, bếp+ăn.

    -  Tầng (02) gồm : 01 phòng sinh hoạt chung, 01 phòng ngủ con, 01 phòng giải trí, 01 phòng         ngủ vip.

    -  Tầng (áp mái) gồm : phòng thờ, 01 phòng ngủ, phòng thể dục thể thao, giặt ủi.

    -  Tầng mái : mái lợp ngói.


     

    TOP